Tạp chí kiến trúc hàng đầu thế giới cũng phải mê mẩn căn nhà rất đỗi đơn giản này.
Nhà ống là một trong những kiểu nhà phổ biến nhất ở các thành phố lớn như TP Hồ Chí Minh, ngôi nhà này cũng không ngoại lệ.
Căn nhà tọa lạc trên mảnh đất có diện tích 3,5 x 18m tại quận 7, trong khu vực khá đông dân cư.
Nhu cầu của gia chủ là một không gian sống linh hoạt, đơn giản và phù hợp với tài chính có hạn của gia đình trẻ.
Dựa theo điều kiện mảnh đất và yêu cầu của chủ nhà, các kiến trúc sư đã đặt ra giải pháp xây dựng các phòng chức năng thông nhau, hạn chế vách ngăn gây bí, giúp hấp thu ánh sáng và thông gió tối đa.
Toàn bộ nội thất cũng tối giản hết sức có thể nhưng vẫn giữ được nét trẻ trung, hiện đại.
Phòng bếp và phòng khách ở tầng 1.
Gian bếp rộng rãi, bố trí hình chữ I.
Đồ dùng tiện nghi, hiện đại.
Sử dụng các bức tường bằng gỗ ghép giúp lưu thông gió và ánh sáng.
Sử dụng màu sơn trắng chủ đạo mang lại cảm giác thoáng rộng hơn cho không gian sống.
Các đồ trang trí hoặc nội thất màu nổi bật giúp tạo điểm nhấn, tránh nhàm chán cho công trình.
Phòng ngủ riêng tư đặt ở tầng 2 với khung cửa lớn giúp lấy ánh sáng tự nhiên.
Cầu thang nằm ở trung tâm của ngôi nhà, ngay dưới giếng trời, giúp lưu thông gió và ánh sáng tự nhiên.
Đồ nội thất được đặt mua với kiểu dáng và màu sắc phù hợp với kiến trúc ngay từ khi chưa thi công nên tổng thể ngôi nhà vô cùng hài hòa, đẹp mắt.
Khu vực hành lang tầng 2.
Phòng tắm hiện đại mang “dáng dấp” của một khách sạn 5 sao.
Khu vực ban công thoáng rộng được tận dụng để trồng cây cảnh.
Mô hình 3D của ngôi nhà.
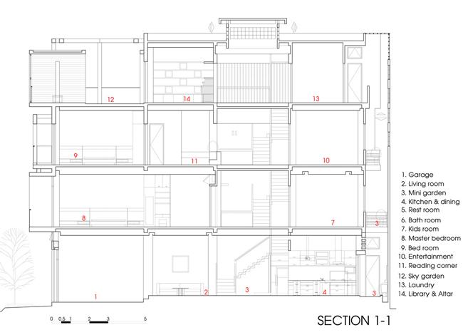
Bản vẽ sơ đồ các phòng của căn nhà.






















