Ngôi nhà ở Đô Lương, Nghệ An có đầy đủ tiện nghi, thích hợp cho đôi vợ chồng già nghỉ dưỡng.
Chủ nhân của ngôi nhà là một đôi vợ chồng đã nghỉ hưu ở Nghệ An. Họ mong muốn có một không gian yên tĩnh, gồm một ngôi nhà đầy đủ tiện nghi, tràn ngập ánh sáng tự nhiên, cũng như một khu vườn nhỏ để chăm sóc.
|
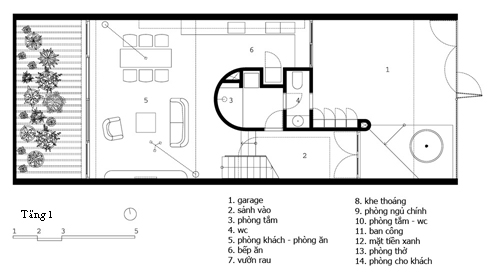
Thiết kế: Wangstudio Kiến trúc sư: Lê Vũ Wang Địa điểm: Đô Lương, Nghệ An Diện tích: 200m2 Năm: 2013 |
Các không gian hấp dẫn nhất của ngôi nhà là phòng khách, phòng bếp và khoảng giếng trời. Phòng khách, phòng ăn với khoảng thông tầng lớn kết hợp các khe lấy sáng theo chiều ngang và dọc, đảm bảo ngôi nhà luôn đủ ánh sáng và thông gió. Không gian lớn ngăn cách với khu vườn phía sau nhà - không chỉ mang đến cảnh quan xanh mà còn cung cấp những bữa rau sạch cho cả gia đình. Rau được trồng ở các ụ bê tông hình trụ với các kích cỡ khách nhau và có thể dễ dàng di chuyển.
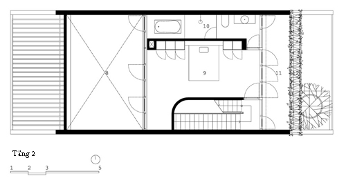
Phòng ngủ chính là không gian có góc nhìn "đắt giá" nhất trong nhà khi hướng ra ban công xanh rờn. Một hàng rào dây leo đã được các kiến trúc sư khéo léo thiết kế để hạn chế ô nhiễm tiếng ồn, khói bụi, cũng như tránh được bức xạ mặt trời.
Điểm đặc biệt nhất trong thiết kế của ngôi nhà là hàng rào dây leo xanh ở mặt tiền. Rất nhiều loại rau nhiệt đới dễ sống, dễ trồng được gia chủ gieo tại đây. Những bậc thang thép giúp vợ chồng già di chuyển lên mái nhà, cũng như tiện tưới bón, cắt tỉa cây rau.
Hãy cùng ngắm nhìn ngôi nhà ngói với mặt tiền xanh mướt ở Đô Lương, Nghệ An:
Chẳng mấy chốc, mặt tiền ngôi nhà sẽ phủ kín các loại cây leo, rau xanh
Không những giúp cung cấp thực phẩm sạch cho gia đình, các loại cây rau còn giúp giảm bớt ô nhiễm tiếng ồn, khói bụi và bức xạ nhiệt.
Mặt tiền xanh giúp chống lại cái nắng nóng của mảnh đất miền Trung
Phòng khách, phòng ăn và phòng bếp thông với nhau
Những vệt nắng xiên từ mái xuống tạo nên cảnh sắc lạ mắt cho ngôi nhà
Căn phòng nhất quán với tông màu nâu gỗ ấm áp
Những ụ cây bê tông lạ mắt mà không lạc lõng trong tổng thể căn nhà
Phòng bếp thoáng đãng lấy nhiều ánh sáng phía mặt tiền ngôi nhà với cửa sổ kính to
Những khe sáng chiếu theo chiều ngang, chiều dọc giúp thông sáng và gió
Cầu thang gỗ thoáng mắt
Phòng ngủ nhìn thông ra mặt tiền xanh hai lớp phía trước nhà.
Những dàn cây leo giúp thông khí cho cả ngôi nhà ống
Vật liệu bê tông trần tạo ra những xúc cảm đặc biệt khi ánh sáng đi qua, kết hợp với sàn gỗ mộc mạc.






















