Với tông màu sáng, các KTS đã tư vấn biến ngôi nhà chỉ rộng 58m2 trở nên lộng lẫy, cuốn hút.
Trả lời:
Chào bạn, nhà 4 người với diện tích 58m2 thì hơi chật hẹp. Tuy nhiên, để có căn phòng đẹp, hiện đại, phù hợp với nhu cầu sử dụng thì hoàn toàn vẫn có thể thực hiện được.
Chúng tôi sẽ tư vấn xin tư vấn thiết kế cho gia đình bạn theo phong cách Scandivanian vừa đảm bảo sự tiện dụng vừa tinh tế, hiện đại.
Căn hộ có diện tích khá nhỏ nên việc sử dụng gam màu trắng làm chủ giúp căn phòng trông có vẻ rộng, thoáng sáng hơn. Ngoài ra, nền trắng cũng sẽ giúp làm nổi bật toàn bộ đồ nội thất trong phòng.
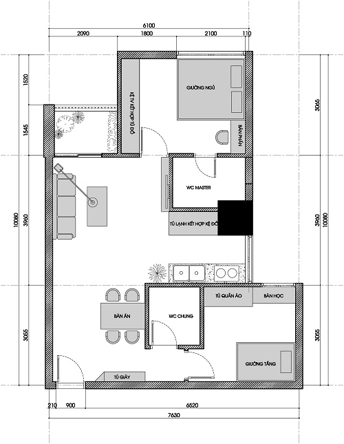
Diện tích 58m2 có thể chia thành 2 phòng ngủ, 1 phòng ăn, 1 phòng khách, thiết kế cụ thể như sau:
Mặt bằng bố trí nội thất
Phòng khách chỉ cần để một bộ ghế sopha dài và một ghế đơn, một kệ để ti vi kết hợp tủ đồ. Sử dụng cửa kính trong suốt sẽ tận dụng được ánh sáng tự nhiên, tạo sự thông thoáng cho căn phòng. Bếp nấu đơn giản, hiện đại, tủ lạnh kết hợp tủ đồ gọn gàng, tone màu trắng sáng giúp cho 1 khu bếp chật hẹp trở nên thoáng sáng.
Nội thất phòng khách
Trang trí tại khu vực bàn ăn, sảnh vào hài hòa với phòng khách, màu chủ đạo là đen trắng, kết hợp với vật liệu gỗ. Sự tinh tế trong việc bố trí đồ đạc, tranh ảnh trang trí tạo nên vẻ đẹp của phong cách Scandinavian. Tỉ mỉ đến từng họa tiết in trên gối tựa, thảm trải sàn….tất cả hòa quyện với nhau hài hòa làm nên 1 không gian mở khách- ăn-bếp sang trọng, tinh tế nhưng vô cùng phóng khoáng.
Phong cách Scandinavian biến không gian bếp trở nên tinh tế đến từng họa tiết trang trí
Phòng ngủ của 2 vợ chồng đầy đủ tiện ích. Nhà vệ sinh khép kín, kệ TV kết hợp tủ quần áo giúp tận dụng tối đa không gian. Bàn trang điểm kính lật sang trọng, hiện đại. Tinh thần Scandinavian thể hiện qua sự tinh tế trong từng vật dụng, họa tiết trang trí. Tone màu xanh dương sáng để tạo cảm giác dễ chịu, nhẹ nhàng.
Phong cách Scandinavian được biến tấu trong phòng ngủ master
Phòng ngủ dành cho 2 con với diện tích vô cùng nhỏ, sử dụng giường tầng là giải pháp hữu hiệu nhất, vừa tối đa không gian sử dụng, vừa tạo không gian riêng tư, hiện đại cho 2 bé. Giường tầng tích hợp thêm ngăn đựng quần áo, giá sách giúp căn phòng gọn gàng, hiện đại hơn. Bàn học được bố trí ở khu vực có thoáng sáng tự nhiên, giúp cho việc học tập của các bé hiệu quả, bức tường với ý tưởng gợi lên hình ảnh bảng đen, gần gũi, kích thích sự sáng tạo cho các bé.
Phòng ngủ nhiều màu sắc dành cho bé
Hy vọng phương án tư vấn của chúng tôi sẽ giúp gia đình bạn có được một không gian sống tiện ích, hiện đại nhé.












