Mong kiến trúc sư tư vấn để xây nhà trên đất 72m2 sành điệu và hiện đại hút mắt.
Kính gửi chuyên mục Nhà đẹp Eva.vn!
Trong thời gian tới tôi có dự định muốn xây 1 ngôi nhà kiểu lô phố với diện tích lô đất là: chiều dài 22m còn mặt tiền rộng 3,3m quay về hướng Đông Nam với yêu cầu:
- Nhà xây 4 tầng với chiều cao không vượt quá 13,5m.
- Tầng 1: Tôi muốn có 1 khoảng sân trước nhà tiện cho việc để xe máy khi ra vào. Trong nhà có gara để xe và phòng bếp.
- Tầng 2, 3: Bố trí 1 phòng khách và 3 phòng ngủ cho gia đình tôi.
- Tầng 4 : Tôi muốn có chỗ để trông cây cảnh...
- Vệ sinh các phòng riêng.
Trên đây là những yêu cầu của gia đình, vậy KTS tư vấn giúp, tôi xin chân thành cảm ơn!
(Ngô Minh Thái – Hà Nội)
Trả lời:
Chào anh!
Với diện tích cũng như yêu cầu mà anh đã đưa ra thì KTS xin tư vấn giúp anh và gia đình như sau:
* Về phương án mặt bằng
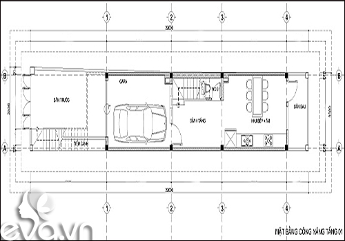
- Mặt bằng tầng 1: Với chiều dài là 22m thì ở tầng 1 có thể để được 1 khoảng sân phía trước dài 5 - 6 m rộng tiện cho việc để xe máy cũng như ô tô ra vào nhà. Tiếp đến là phần gara để được 1 ô tô và xe máy từ 2 – 4 chiếc. Phần nửa sau của tầng 1 được bố trí bếp và phòng ăn phục vụ sinh hoạt cho gia đình + bố trí được thêm 1 sân phụ phía sau nhà, ở đây gia đình có thể để những chậu cây cảnh nho nhỏ. Vệ sinh cho tầng 1 nằm ở dưới cầu thang.
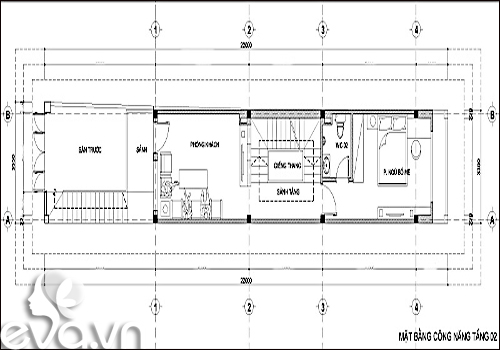
- Mặt bằng tầng 2: Phía mặt tiền là phòng khách – một không gian mở, là nơi có thể tiếp khách hoặc là nơi sinh hoạt chung của gia đình, được thiết kế thoáng và có thang ngoài đi riêng. Phía sau là phòng ngủ có vệ sinh riêng. Phòng khách và phòng ngủ được liên kết bởi 1 hành lang (sảnh tầng).

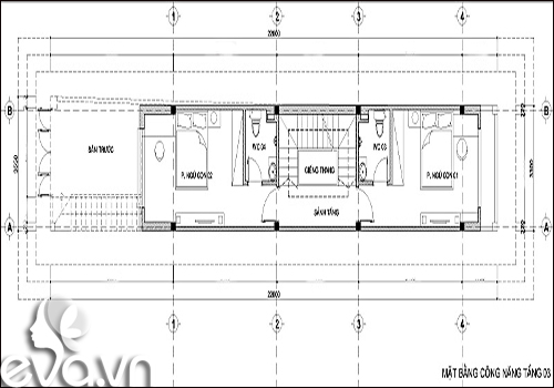
- Mặt bằng tầng 3: Ở tầng 3 được bố trí 2 phòng ngủ đều có vệ sinh riêng.

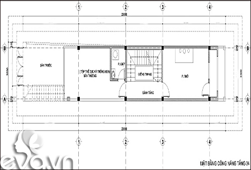
- Mặt bằng tầng 4: Tầng 4 bố trí 1 phòng thờ phía sau đảm bảo được sự yên tĩnh. Phía trước là phần sân thượng, gia đình có thể để những chậu cây cảnh hay những chậu bonsai, làm sân phơi…

* Về phương án kiến trúc mặt tiền:
Phối cảnh theo phong cách hiện đại, hình khối đơn giản, màu sắc chủ đạo là gam màu trắng kết hợp với gam màu xanh xám tạo 1 điểm nhấn cho ngôi nhà. Phần mặt tiền của gia đình có hướng Đông Nam rất tốt, do vậy phần cửa của các tầng được mở rộng để đón gió Đông Nam.


Một số gợi ý về cách bài trí các phòng:

Phòng khách

Bếp và bàn ăn

Các phòng ngủ trong nhà

Trên đây là tư vấn của KTS, hy vọng sẽ phần nào giúp được cho gia đình anh, chúc gia đình anh sẽ có phương án phù hợp với ngôi nhà của mình.

